Do you have a property to sell? Contact Us

Hills Road, Cambridge, CB2 8QE

Guide Price £1,600,000
Tenure Freehold
4 Bedrooms
1 Bathroom
3 Receptions

REQUEST YOUR VIRTUAL TOUR! A splendid 1930s “Arts and Craft” style family house with planning permission in place and charming gardens of approximately a quarter of an acre, in this convenient south city location.

  • Property specification

    • REQUEST YOUR VIRTUAL TOUR
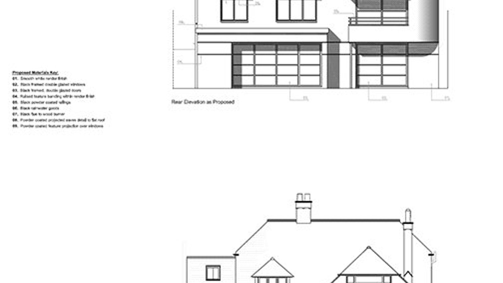
    • 1,783 sq ft (166 sq m) of accommodation with planning permission to extend to approximately 3,326 sq ft (309 sq m)
    • "Arts and Crafts" style home retaining many of its original period features
    • Delightful Sitting Room with log burner and door to rear garden
    • Dining Room with feature fireplace, attractive arched feature window and door to garden
    • Versatile Family Room with bay window to front aspect, original fireplace and useful fitted desk/study area
    • Spacious Principal Bedroom with bay window plus 3 further double Bedrooms and Family Bathroom to the first floor
    • Wonderful mature gardens of a quarter of an acre
  • Description

    VIRTUAL VIEWING AVAILABLE ON THIS HOME A splendid 1930s “Arts and Craft” style family house with planning permission in place and charming gardens of approximately a quarter of an acre, in this convenient south city location. City Centre 2 miles, Addenbrooke's Hospital/Cambridge Biomedical Campus 0.5 of a mile, Mainline Railway Station (King's Cross and Liverpool Street lines) 1.5 mile, M11 (junction 11) 2.5 miles, (distances are approximate). Dating from the 1930s, this impressive “Arts and Craft” style house has considerable charm and provides well proportioned, versatile accommodation arranged over 2 floors. Planning permission (ref: 20/04119/HFUL) has been obtained for removal of the existing garage to substantially extend the property to the ground and first floors, as well as the creation of a second floor bedroom and en suite shower room. The extension will increase the floor area to approximately 3,326 sq ft (309 sq m) and copies of the planning permissions are available upon request from Bidwells or via Cambridge City Council website www.cambridge.gov.uk and following the planning link.

07836 501753
Andrew.Tucker@bidwells.co.uk

Location

Train Stations:

  • Cambridge (Cambridge Train Station)

    0.87km

  • Cambridge (Cambridge Railway Station)

    1.39km

  • Cambridge (Cambridge station)

    1.4km

  • Great Shelford

    3.65km

Property Advisor

Andrew Tucker

Andrew Tucker

Partner, Head of Residential Sales

Andrew has sold properties for all walks of life from television personalities to world-class scientists – including Stephen Hawking!

Read more

Search Bidwells